La rehabilitación de la Casa de Isaac Peral ayudará a conocer mejor la historia del inventor cartagenero
- Detalles
- Escrito por Ayuntamiento de Cartagena. 3 de julio de 2020, viernes
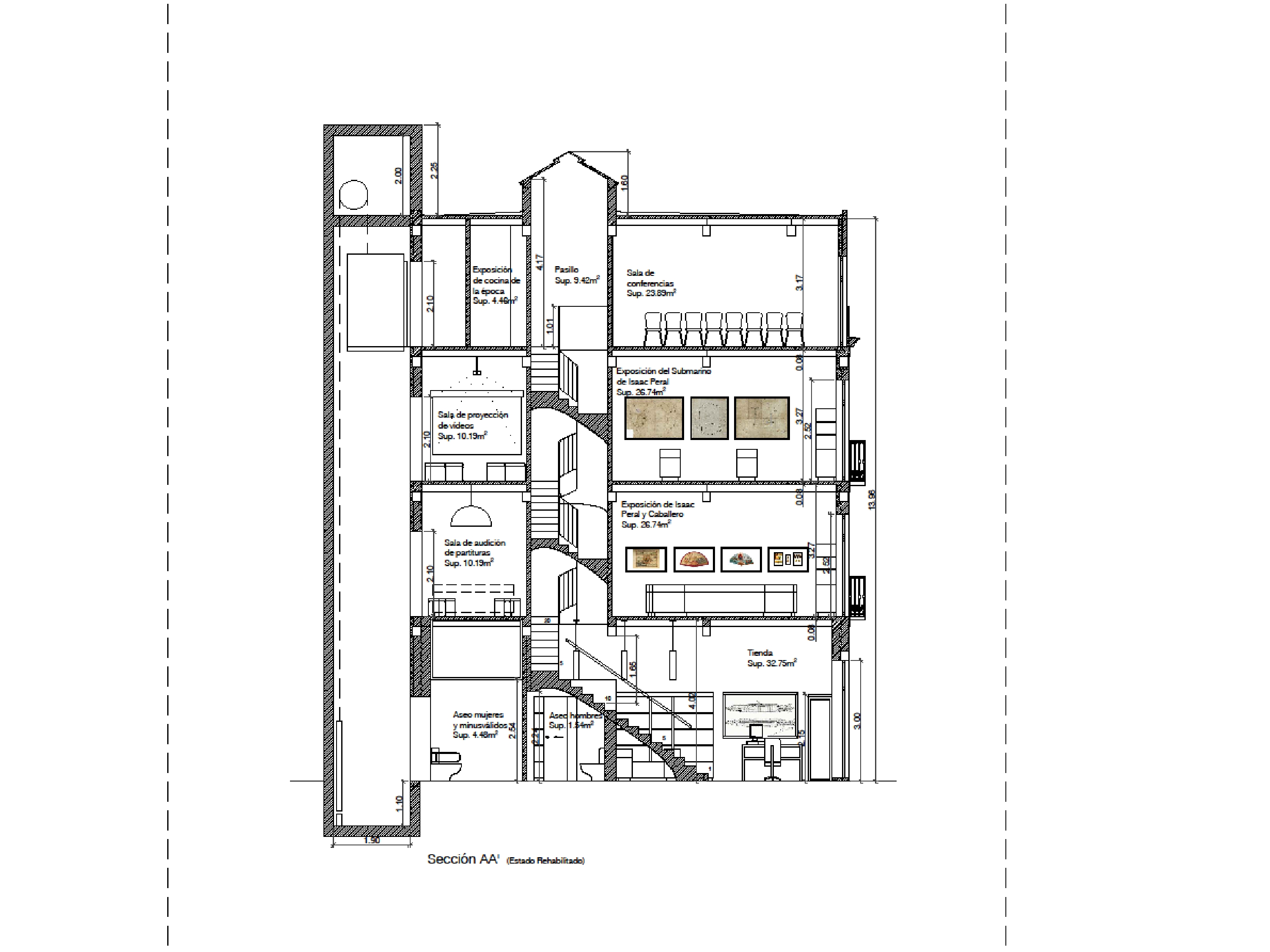
El Proyecto de Rehabilitación de la Casa de Isaac Peral y Caballero, ubicada en el callejón de Zorrilla de Cartagena, tiene por objetivo "salvar de un futuro incierto el edificio que fue la casa natal del inventor, y por otro lado, ubicar en un espacio rehabilitado la colección de objetos relacionados con la vida de Isaac Peral, propiedad de Diego Quevedo", según ha explicado la alcaldesa, Ana Belén Castejón, en la presentación del proyecto este viernes en el Palacio Consistorial. "Creemos que este museo-casa natal debe servir para mostrar al visitante la verdadera magnitud de este gran genio cartagenero", ha destacado la primera edil.
Estos trabajos se enmarcan dentro del Plan de Recuperación del casco histórico de Cartagena, puesto en marcha por el Ayuntamiento, que abarca diversas actuaciones. "Hasta el momento se han contratado las obras de reforma de las puertas de San José, están en proceso de contratación la rehabilitación de la calle de la subida San Diego y la calle Saura y también se está licitando la segunda fase del Anfiteatro Romano", ha recordado Castejón.
El arquitecto, José Manuel Chacón, ha explicado que el proyecto de rehabilitación consiste en un edificio de cuatro plantas de 200 metros construidos, con un presupuesto de 265.000 mil euros. Chacón ha afirmado que van a mantener la fachada, los interiores, los forjados originales y la estructura de madera, "la idea es que se pueda reconocer una casa de aquella Cartagena de finales del siglo IXX".
Por su parte, el director general de Patrimonio, Damián Pérez, señalaba que está previsto que las obras comiencen sobre el mes de noviembre de este año con un plazo de ejecución de 6 meses. Una vez finalizados los trabajos de rehabilitación, se pasaría a la segunda fase de musealización del inmueble, con un presupuesto plurianual previsto por el Ayuntamiento de 185 mil euros.
A la presentación también ha asistido el concejal del Área de Turismo, Comercio, Sanidad y Consumo, Manuel Padín, junto a los técnicos y expertos que han participado en el proyecto, el biógrafo de Peral, Diego Quevedo, y la arqueóloga, María José Madrid.
* Texto remitido en el que se respeta el contenido íntegro, la redacción y la ortografía, con excepción del titular y de la entradilla del artículo
powered by social2s





























